首頁 > 房屋出售 > 誠昱/海佃商圈大地坪透天
第一房屋仲介 - 誠昱/海佃商圈大地坪透天

誠昱/海佃商圈大地坪透天

透天/別墅      1180萬

系統編號

物件區域
709台南市安南區

物件地址
海環街

地坪
35.96 坪

總建坪
36 坪

室內坪數
36 坪

主建物坪
36 坪

總樓層
2 樓

位於樓層
1~2 樓

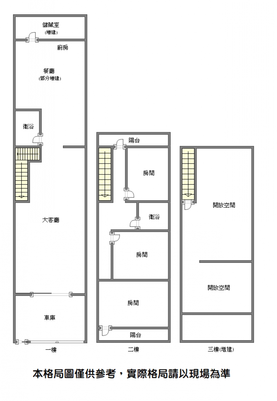
格局
3房2廳2衛2陽台

房屋座向
座東北朝西南

採光面數
2 面採光

建物結構
加強磚造

建築完工
1979年 屋齡約47年

臨路寬度
約6 米路

鄰近市場
傳統市場

鄰近學區
海東國小|安南國中

公園綠地
社區公園

特色說明
1.35大地坪,土地零持分,臨6米路通巷
2.位於海佃路熱鬧商圈,生活交通都便利
3.近商60重劃區,未來增值可期
4.約十年前水電管線更新,屋況使用更安心

※以上資訊如有記載錯誤,一律依謄本登記簿為準

 - 誠昱/海佃商圈大地坪透天
 - 誠昱/海佃商圈大地坪透天
 - 誠昱/海佃商圈大地坪透天
 - 誠昱/海佃商圈大地坪透天
 - 誠昱/海佃商圈大地坪透天
 - 誠昱/海佃商圈大地坪透天
 - 誠昱/海佃商圈大地坪透天
 - 誠昱/海佃商圈大地坪透天
 - 誠昱/海佃商圈大地坪透天
 - 誠昱/海佃商圈大地坪透天
 - 誠昱/海佃商圈大地坪透天
 - 誠昱/海佃商圈大地坪透天
 - 誠昱/海佃商圈大地坪透天
 - 誠昱/海佃商圈大地坪透天
 - 誠昱/海佃商圈大地坪透天
推薦物件...

誠昱/西港市區全新優質傳.

誠昱/西港市區全新優質傳.
1638 萬

誠昱/鹽水獨家全新超值車.

誠昱/鹽水獨家全新超值車.
1358 萬

誠昱/大面寬雙店面潛力建.

誠昱/大面寬雙店面潛力建.
1656 萬

誠昱/安和商圈全新3房平.

誠昱/安和商圈全新3房平.
1260 萬

誠昱/新營達觀五福全新車.

誠昱/新營達觀五福全新車.
1700 萬

誠昱/金城國中裝潢優質3.

誠昱/金城國中裝潢優質3.
958 萬

誠昱/南二中芳鄰大地坪車.

誠昱/南二中芳鄰大地坪車.
2890 萬

誠昱/永康社教中心低總價.

誠昱/永康社教中心低總價.
678 萬


更多..
地圖
分享到臉書